Property Description
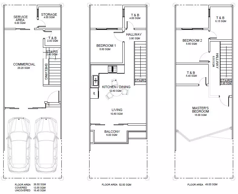
This Townhouse in Guadalupe, Cebu City, Cebu, Philippines is for sale at ₱11,065,560. It features 4 bedrooms and 5 bathrooms with 175 sqm of floor area.
Cebu 3 Storey Commercial House in Happy Valley 3 Storey Shophouse Lot Area: 75 sq.m. Floor Area: 175 sq.m. 4 Bedroom 5 Toilet and Bath 2 Carpark TSP:...11,065,560.00 10% Spot DP:.. 1,106,556.00 Less RF:...................50,000.00 Net:....................1,056,556.00 Transfer Charge:..885,244.80 BANK FINANCING Loanable Amount 9,959,004.00 If you're interested or have questions regarding the Real Estate properties listed on this site, or want to list or advertise your properties here, Please feel free to contact us at:
Property Highlights
- Bedrooms: 4 bedrooms
- Bathrooms: 5 bathrooms
- Floor area: 175 sqm
- Lot area: 75 sqm
- Furnishing: Finish
- Listing type: For Sale









